At a glance
Corsham
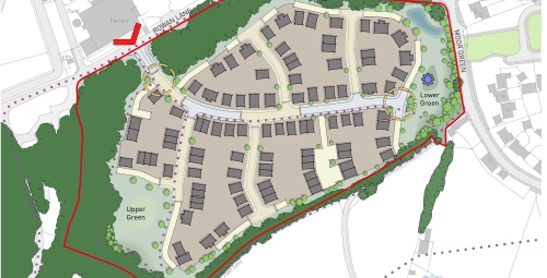
81 New Homes
Consented
Site and context
The subject land is located off Westwells Road, Corsham, adjacent to the village of Westwells in Wiltshire and comprises brownfield land formerly owned by the Ministry of Defence and used at various times as a base/depot and then subsequently as a camp for displaced persons. The buildings on the site were removed some years ago, but the ground is extensively covered with foundations and concrete bases together with metalled highways.
Proposals
Our proposals comprise a residential-led development of up to 81 dwellings.
Current status
A planning application was submitted and subsequently refused by Wiltshire in September 2019. An appeal was lodged and the hearing held in February 2021. The appeal was successful and the decision to consent the scheme was issued by the Inspectorate on 15 March 2021.
The site was sold to Ark Data Centres in 2022.
